
Suivi par 3 personnes
Annonce 955224 déposée le 01 octobre 2025
1 950 000 €
Le mot de l'annonceur
Exceptionnelle propriété équestre et d’élevage bénéficiant d’un cadre idyllique, d’un panorama et quiétude unique.
Le domaine bénéficie de ± 4 ha 20 a 25 ca font de ce domaine un lieu idéal pour toute activité équestre privée.
L’ensemble se définit en un corps de logis moderne en pierres avec écuries, dépendances et piste couverte.
Les bâtis se définissent en :
La villa :
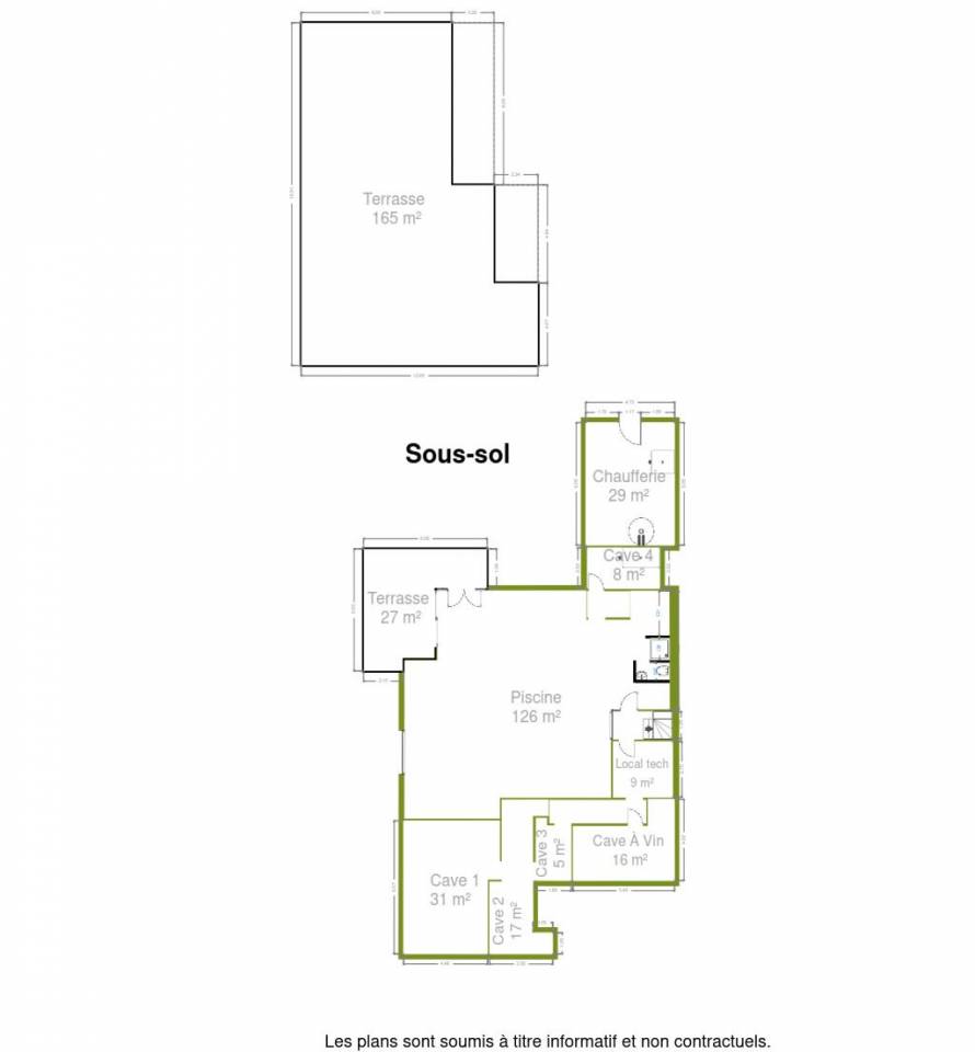
Sous-sols :
Piscine intérieure sur terrasse extérieure, vestiaires, douches, local technique, cave à vins, chaufferie, diverses caves, …
Rez-de-chaussée :
Majestueux hall d’entrée desservant un bureau, une chambre avec salle de bains et dressing, un salon de 25 m², un séjour de 62 m² sur terrasse, une cuisine hyper équipée, une buanderie rendant vers un vaste garage avec remise.
1er étage :
Hall de nuit distribuant 3 chambres, une salle de bains, deux pièces de 38 & 39 m² à usage multiple.
2ème étage :
Grenier en trois pièces aménageables.
Le corps de logis est agrémenté en diverses terrasses et balcon s’ouvrant sur un magnifique jardin arboré avec piscine extérieure.
Techniques :
Châssis aluminium, ardoises naturelles, parement pierres, citerne eau de pluie de 10 K L, installation photovoltaïque de 12 Kwc, chaudière mazout Viessmann, chauffage sol, sols pierre de France / parquet, aspirateurs muraux, pompes à chaleur pour les piscines, …
Infrastructures équestres :
Elles se présentent en une rangée de 7 boxes avec abreuvoirs automatique, une sellerie, …
Le fenil avec monte-charge est disposé au-dessus des boxes.
Derrière la rangée de boxes, une piste couverte de 20 par 20.
Les terrains :
La propriété s’étend sur ± 4 ha 20 a 25 ca.
Il demeure la possibilité de négocier une parcelle de 30 a 90 ca.
Situation :
Située dans une rue calme avec une vue globale sur la région
± 13 km de Libramont - ± 28 km de Bastogne - ± 60 km d’Arlon - ± 70 km de Namur - ± 80 km de Liège ± 90 km de Luxembourg - …
Conditions :
Renseignements complets et visite en après signature de NDA & Validation propriétaire.
Annonceur
COFIM srl
Professionnel
Jean Yves C.
6870 Saint Hubert - Belgique (Wallonie)
Localisation
Annonces similaires